
08/07/08, 07:50 AM
|
 |
|
|
Join Date: Oct 2007
Location: South Dakota
Posts: 24,108
|
|
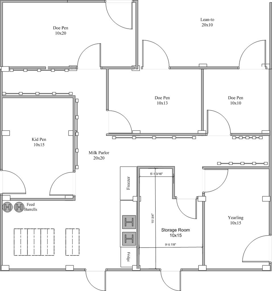
I like the second one because it seems more open. The freezer being next to the table may end up being a table top also with stuff set on it so it will be a pain when you want to open it. That's if it's a top lifting one. I would keep feed barrels locked up in the storage room. Actually, I keep my feed in the house! That way there is NO chance of any of my critters getting into it and less chance of mold and rodents.
Looks nice! now get off the drawing board and start building!
__________________
Teach only Love...for that is what You are
|