 |
|

08/22/07, 07:36 AM
|
|
|
|
Join Date: Sep 2006
Location: MA and PA
Posts: 3,068
|
|
|
Barn home
My dh and I are thinking about building a "moniter style" horse barn as are empty-nest home. We would like to keep it under 1300 square feet 2 bedrooms ,2 baths. We would use the wood from our property and I think build it on a slab. Does anyone have any experience with this? Any suggestions of floor plans? Any ideas would be appreciated!
__________________
"I yam what I yam" Popeye (btw I yam a woman!)
|

08/22/07, 11:29 AM
|
|
|
|
Join Date: Dec 2002
Location: Texas
Posts: 918
|
|
|
Great homesteading project that would challenge anyone. Were I in your place, I would explore good, oldfashioned post and beam or timber frame construction. My belief is that energy costs will continue to climb in the future which makes it wise to focus on that a bit. Curing the cut timber from your own land may require some time. Take care and good luck...Glen
__________________
The more a man travels, acquires wisdom and learns about life, the more likely he is to marry a Country Girl.
|

08/22/07, 12:37 PM
|
|
In Remembrance
|
|
Join Date: May 2002
Location: illinois but i have a homestead building in missouri
Posts: 1,436
|
|
|
I have a plan in my files that might be adaptable to your needs. give me a pm or an email and we can discuss it. If I can dig it out of the file I can post it here if others are interested.
__________________
FolioMark
Mus uni non fidit antro. ~ A mouse does not rely on just one hole.----Plautus
|

08/22/07, 04:55 PM
|
|
|
|
Join Date: Sep 2006
Location: MA and PA
Posts: 3,068
|
|
|
Quietstar, I thought the moniter barn style is a post and beam construction but I could be wrong. I agree about the energy costs so I want to make darn sure whatever we build will be as energy efficient as possible. Folio Mark, if it's not to much trouble could your post whatever plans you have here because I am computer challenged don't know how to contact you . thanks.
__________________
"I yam what I yam" Popeye (btw I yam a woman!)
|

08/22/07, 11:02 PM
|
|
|
|
Join Date: Jun 2007
Posts: 200
|
|
|
I'm interested in those plans too!! Please post them!! :0)
Thanks!!
Yvonne
|

08/22/07, 11:13 PM
|
|
|
|
Join Date: Oct 2006
Location: Alaska
Posts: 3,606
|
|
I asked about this not too long ago and others have in the past as well. Check the archives for additional resources!
|

08/23/07, 05:03 AM
|
|
|
|
Join Date: Oct 2006
Location: N. Olmsted, Ohio
Posts: 62
|
|
|
|

08/23/07, 06:35 AM
|
|
In Remembrance
|
|
Join Date: May 2002
Posts: 6,844
|
|
|
Problem with post and beam construction is you may have great difficulty in finding someone to do it (assuming you want to do the traditional mortise/tenon building). In some areas the Amish/Mennonites do it.
|

08/23/07, 07:02 AM
|
|
|
|
Join Date: Sep 2006
Location: MA and PA
Posts: 3,068
|
|
|
Ken , We will be building in an area with a large Amish population. It would be wonderful to hire them for their knowledge of the craft but I didn't think they would work for "outsiders".. Severian , thank you for the link. That sure looks like a fast and less expensive way of making the connections. The barn in the link is exactly what we had in mind, but I'm not sure how to place the bathrooms and stairs to the loft (master bedroom ) I believe its cheaper to have the plumbing in line with one another but whatever way I figure it out it looks weird. Thanks again for your help!
__________________
"I yam what I yam" Popeye (btw I yam a woman!)
|

08/23/07, 10:18 AM
|
|
In Remembrance
|
|
Join Date: May 2002
Posts: 6,844
|
|
|
Ask around. Sometimes Amish and Mennonites have outside businesses. For example, I know of one Mennonite family south of here who install metal roofs.
Make sure the lumber has been properly dried.
|

08/24/07, 05:50 PM
|
|
In Remembrance
|
|
Join Date: May 2002
Location: illinois but i have a homestead building in missouri
Posts: 1,436
|
|
Roadless: Heres the design though you cant see the details in this picture. Originally it was meant to be two sheds, one for sleeping and one living and storage on two sides of a wide courtyard. Basically they are pole buildings with raised deck floors. However if you made the front posts of the sheds extra tall so that they formed a false front like an old west building, you could put in a beam and support a roof over the courtyard. The raised roof would form a sort of monitor if you put windows or louvers in the wall area above the shed roof lines. if you cant visualize this let me know and I can do a quick sketch and post it here. it wouldnt be hard to do and would be far simpler than true post and beam and all those fancy tenon joints.
__________________
FolioMark
Mus uni non fidit antro. ~ A mouse does not rely on just one hole.----Plautus
|

08/25/07, 08:06 AM
|
|
|
|
Join Date: Sep 2006
Location: MA and PA
Posts: 3,068
|
|
|
Thank you Foliomark! that is the design we are after!The trouble I am having is how to place the bathrooms (one in the loft, and one downstairs) and the stairs to the loft, which will be the master bedroom. I would also like the top roof line extended so there could be a small deck off the bedroom , which would give a covered area below. I can envision this but I don't know if I am explaining myself well. I also don't want to lose the open feeling of the downstairs so maybe a walk way to the deck rather than a whole second floor,is this feasiable? Thanks
__________________
"I yam what I yam" Popeye (btw I yam a woman!)
|

08/25/07, 04:51 PM
|
|
In Remembrance
|
|
Join Date: May 2002
Location: illinois but i have a homestead building in missouri
Posts: 1,436
|
|
|
Roadless: Let me see if I have this right. You want a loft over part of the middle section for the master bedroom with a bathroom as well. The floor level of the loft would be about where the ceiling line of the lower level bathroom would be. It wouldnt be difficult to run the plumbing lines over to the ceiling area of the downstairs bath and then into the main stack. Or you could do a seperate stack for the upstairs bath and then join into the main drain on the lower level. I assume you plan to use the monitor to light the bedroom space. The stair case can easily be tucked into the central space on one side, either under the loft of in the higher unlofted space. Your choice. The deck off the master bedroom loft is no trouble at all. I can help you tinker with the plan to make it clearer to you and I may actually have a better plan in the files now I think of it. Let me know.
__________________
FolioMark
Mus uni non fidit antro. ~ A mouse does not rely on just one hole.----Plautus
|

09/01/07, 04:27 PM
|
|
In Remembrance
|
|
Join Date: May 2002
Location: illinois but i have a homestead building in missouri
Posts: 1,436
|
|
|
__________________
FolioMark
Mus uni non fidit antro. ~ A mouse does not rely on just one hole.----Plautus
|

09/01/07, 04:28 PM
|
|
In Remembrance
|
|
Join Date: May 2002
Location: illinois but i have a homestead building in missouri
Posts: 1,436
|
|
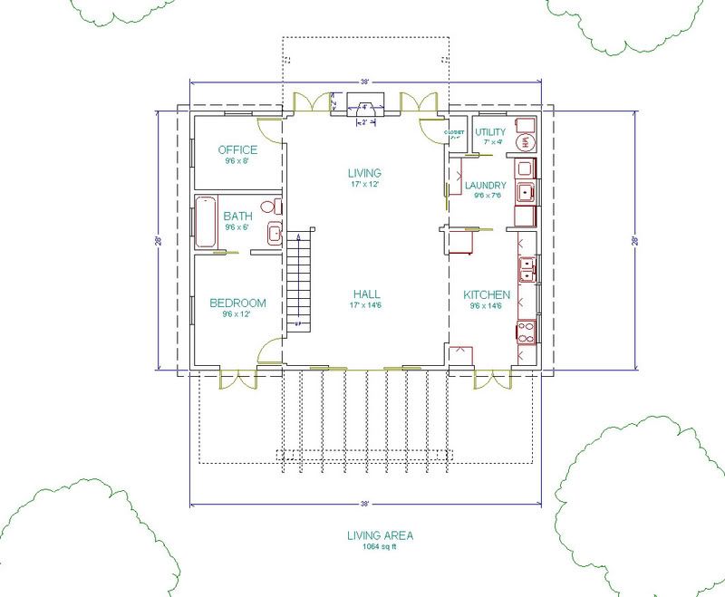
Heres the 2nd floor plan and a view of the bedroom/bath.
__________________
FolioMark
Mus uni non fidit antro. ~ A mouse does not rely on just one hole.----Plautus
|

09/02/07, 11:35 PM
|
|
|
|
Join Date: Jun 2007
Posts: 200
|
|
|
FolioMark - nice!! Now ya got me looking at barn homes....
They seem simple enough to build with miniminal expenses...
I'm glad you posted those...been thinking on how to make it a three bedroom place - an open design so I can see mostly all of the home from the kitchen (if that is possible - with a loft)...
Hmmm....thinking....
Would it be alright if I sent you the rough design I did and see what is wrong with it?
Thanks!!
Yvonne
|

09/03/07, 12:14 AM
|
|
In Remembrance
|
|
Join Date: May 2002
Location: illinois but i have a homestead building in missouri
Posts: 1,436
|
|
YVONNE;
Sure post it here or send a p for my email. glad to look the plan over.
__________________
FolioMark
Mus uni non fidit antro. ~ A mouse does not rely on just one hole.----Plautus
|

09/03/07, 12:14 PM
|
|
|
|
Join Date: Apr 2007
Location: The Woods of Georgia
Posts: 950
|
|
|
I don't have any blueprints or pics but theres a house down the road where the horses sleep downstairs in the barn and on top the people sleep in the house. It lools like a typical red barn but theres a nice well built stair case on the outside and one circular stair case inside the barn where they can get upstairs from the inside of the barn.
|

09/03/07, 12:32 PM
|
 |
Banned
|
|
Join Date: May 2007
Posts: 41
|
|
|
Oh how cool! Barn homes are quite popular in our area.
|
| Thread Tools |
|
|
| Rate This Thread |
|
|
Posting Rules
|
You may not post new threads
You may not post replies
You may not post attachments
You may not edit your posts
HTML code is Off
|
|
|
All times are GMT -5. The time now is 09:37 PM.
|
|